+34 676 833 216
info@aureohome.com
English
English
Español
Home
Properties
Owners
About us
Blog
Contact
Properties
Villa
Previous
Next
Property price
Check price
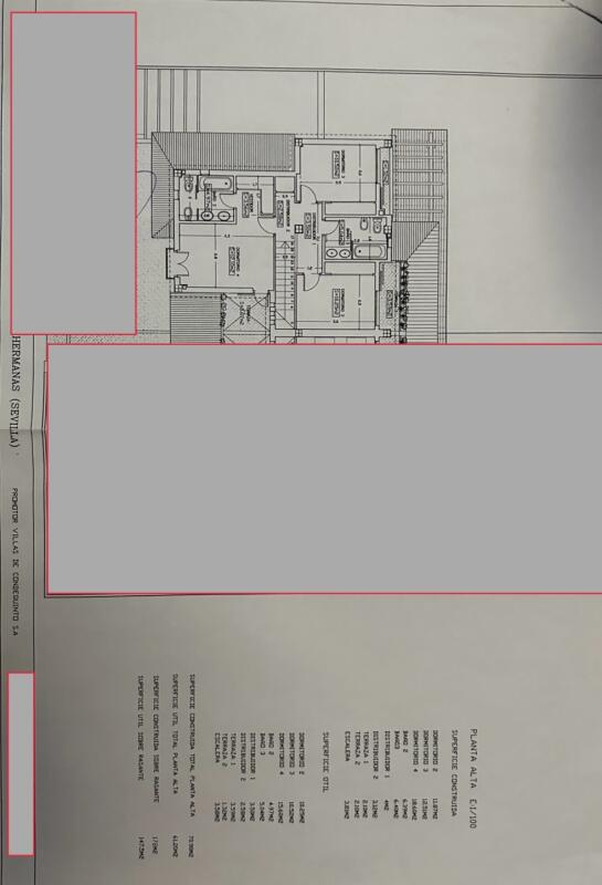
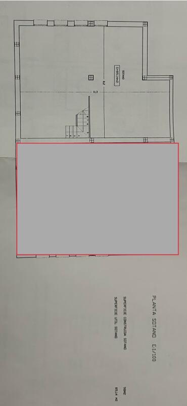
Property features
4 bathrooms
5 rooms
340 m
2
built
300 m
2
plot
Garden
Common areas
Condition: in good condition
Parking / Garage
Air conditioning
Swimming pool
Storage room
Property description
Property location
Contact us to obtain the property location
Property images
I'm interested!
This property has already been sold
View all photos
Schedule your visit!
We have what you're looking for.
Contact us
Properties
Owners
About us
Blog
Contact
676 833 216
info@aureohome.com
Legal Notice
Privacy Policy
Cookies Policy
© 2026 Aureo Home. All rights reserved